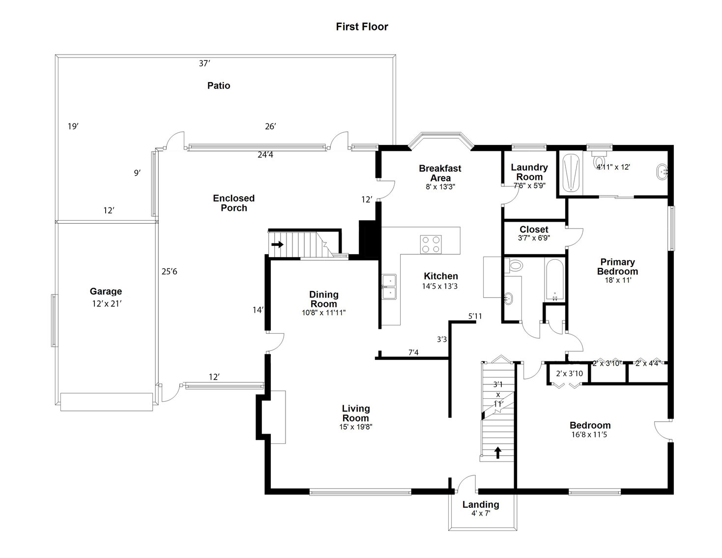
Super nice brick story and a half home with basement on 2.05+/- acres in the heart of Farmington ready for you to name your price today! The home was built in 1961 and has approximately 3,000 square feet. Enjoy a nice layout of 4 bedrooms/3 bathrooms, fireplace, attached garage all ready for your updates and ideas. 2 bedrooms on the main level. The 2+ acre grounds won't disappoint with beautiful oak trees and established landscaping. Partially finished basement. This one has "good bones" and is prime for a fresh makeover. Can't beat the location...Bid today!
2223 Farmington Road Mocksville, NC 27028
Owner: David Lee Smith Estate, living
Online Only Bidding
Important - Read these Terms:
Please take the time to read the following set of terms and conditions for the online auction. When you register to bid, you will have to acknowledge that you have read these terms and conditions. If you intend to register, the following items will pertain to you.
Agency:
The Swicegood Group, Inc. is acting as an agent of the Seller and at no time acting on behalf of the Buyer.
Buyer's Premium: There will be a Ten Percent (10%) Buyer’s Premium added to the final bid price to determine the final contract purchase price. For example, a bid of $100,000 is a contract price of $110,000.
Identity/Credit Verification: In order to verify the identity of the cardholder and that the credit card used is valid, we require a $100.00 authorization hold to be placed on your credit card in order to complete your registration. This hold will be removed by your bank in a 24/48-hour timeframe (varies bank to bank). Bidding rights are provisional, and if complete verification is not possible, The Swicegood Group, Inc. will cancel your registration, and bidding activity will be terminated. The Seller and The Swicegood Group, Inc. reserve the right to refuse service to any person who they feel to be fraudulent.
Seller’s Closing Attorney:
TBD
Auction Ending:
Online auctions are timed events, and all bidding will begin to close at a specified time. Online auctions also have an auto-extend feature. Any bid placed in the final few minutes of the auction will automatically extend the auction minutes from the time the bid was placed. Example: If an auction is scheduled to close at 6:00 and we receive a bid at 5:59, the close time will automatically extend the bidding window. The auto-extend feature will continue until the bidding has ended. In the event that the auto-extend time needs to be increased or decreased, The Swicegood Group, Inc. may do so at any time during the auction until the close of bidding.
Outbid /Back-In Notification/Max Bid:
During this auction process, there is a chance that you will be outbid. If you have the bidding app, you will receive a popup notification, otherwise, you will receive an email. It is the responsibility of the bidder to realize and maintain their desired bidding position. You may place a maximum (max bid) which will allow the computer to protect you up to that amount. If you place a bid and immediately get a message that you have been outbid, that means someone has already placed a max bid and you will need to continue bidding until you are the high bidder in order to supersede the previously inputted max bid.
Property Information & Inspection:
The Swicegood Group, Inc. is not responsible for any missing or incorrect listing information. The Swicegood Group, Inc. has attempted to provide accurate descriptions; however, it is the Bidder's responsibility to conduct inspections to determine the condition and feasibility of the Bidder’s intended use. Descriptions that are provided by The Swicegood Group, Inc. are provided in good faith and are matters of opinion. It is automatically acknowledged by registering that you have personally inspected the property, hired an agent to inspect the property, or waived your right to inspect the property. Placing a bid creates a contractual agreement to purchase the property at the high bid price plus a Buyer’s Premium and any additional fees included in the closing of real estate.
Auctioneer's Discretion:
The Swicegood Group, Inc. has full discretion to modify the date and time, order, and details of the auction for any reason or no reason at all, including but not limited to technical issues, emergencies, and the convenience of The Swicegood Group, Inc. or the Seller. Auctioneer does not preclude the right of any employee, stockholder, or subcontractor the right to bid on any auction. Auctioneer reserves the right to bid on behalf of the seller unless the sale is an absolute auction.
Server & Software Technical Issues:
In the event there are technical difficulties related to the server, software or any other online auction-related technologies, The Swicegood Group, Inc. and the Seller reserves the right to extend bidding, continue the bidding, or close the bidding. Neither the company providing the software nor The Swicegood Group, Inc., or the Seller shall be held responsible for a missed bid or the failure of the software to function properly for any reason. The Swicegood Group, Inc. may send email notifications to registered Bidders with updated information as deemed necessary.
Payment Terms:
A deposit of $5,000 is required as an earnest money deposit in the form of a certified check or wire transfer. The earnest money deposit is a credit towards purchase price only at closing and is due within 24-hours of contract execution date with time being of the essence. The balance of the contract purchase price is due at closing, which shall be in thirty days to no more than forty-five days or upon delivery of the deed. In the event the Seller cannot produce a deed with an insurable title, the earnest money deposit will be refunded to the Buyer. Closing will be as specified in the Auction Purchase Contract. Financing is welcome however, the auction sales contract is not contingent on or subject to financing, appraisal, survey or inspections of any kind, as agreed to by the Bidders and/or Buyers at registration and specified in the Auction Purchase Contract.
Auction Purchase Contract:
The contract is required to be fully and correctly executed, without any modifications within 24-hours of the close of the auction and/or Seller’s confirmation, with time being of the essence. A contract that is incomplete, incorrect, or modified in any respect, is considered to be in default. By bidding on the property, the Buyer agrees to all terms and conditions set forth.
Closing:
Property is to be closed within 30-45 days (per contract).
Closing Costs:
Buyer’s closing costs can include new boundary survey (if necessary), title search fees, title insurance premiums, recording fee of documents, Buyer’s prorated items, and any other fees required for closing. Seller’s closing costs are limited to their portion of the prorated tax/HOA, revenue stamps, and the cost of deed preparation. All parties will be responsible to pay their own closing costs.
Property Condition:
All property in this auction is selling “AS-IS, WHERE IS” with all faults if any. The Swicegood Group, Inc. makes no representations or warranties, expressed or implied, concerning the property. Descriptions of the property are believed to be correct but are not guaranteed. It is the Buyer’s responsibility to conduct any inspection prior to the auction. All due diligence periods end the date the auction is scheduled to end, and prior to the end of the auction. It is possible that the property being sold is subject to restrictive covenants and homeowner’s association rules, regulations and dues. It is the Buyer’s responsibility to inspect all aspects of the property before placing a bid. No sale shall be invalidated by the Buyer as a result of he/she not conducting their own inspection prior to placing a bid or doing due diligence. It is automatically acknowledged by placing a bid that you have personally inspected the property, hired an agent to inspect the property or waived your right to inspect the property.
Legal Interpretations:
The laws of the State of North Carolina shall interpret this document.
Disputes:
Any and all causes of action resulting from this auction shall be heard in the General Court of Justice of Davie County, North Carolina as the sole and exclusive venue for North Carolina properties.
Auction Bidder and/or Buyer Default:
The successful Bidder/Buyer whose bid is confirmed and who does not execute and return the contract with the earnest money deposit within 24 hours of the conclusion of the auction and/ or Seller’s confirmation notice, will be considered in default and will be black-flagged in our database as a Non-Paying Bidder and will no longer be allowed to participate in our auctions and the Seller has the right to exercise all legal remedies for such breach of contract. The Swicegood Group, Inc. reserves the right to sell to the next highest qualified Bidder. By registering and placing a bid, you agree that if you become a Bidder in default as specified above, The Swicegood Group, Inc. has the right to charge your credit card a penalty of up to one-half of the required earnest money deposit.
Auction Cancellation – Bid Rejection:
The Swicegood Group, Inc. reserves the right to reject any and all bids for any reason. The Seller and/or The Swicegood Group, Inc. as Seller's representative reserves the right to cancel this auction or remove any item or lot from this auction prior to the close of bidding even if a bid has been placed, unless the auction is advertised Without Reserve or Absolute.
Deed:
As specified in the Auction Purchase Contract.
Possession:
Possession delivered at closing.
Real Estate Taxes and Closing Cost:
Taxes will be prorated to the day of closing using the most current available year’s tax amount. HOA fees and condominium assessments, if applicable, will be prorated up to the date of closing. The Buyer will pay as elected, other closing costs associated with their side of the sale such as title search, title insurance, including local and state recording fees.
Easements & Zoning:
Subject to any and all easements recorded or unrecorded.
Acreage & Aerial Photos:
Parcel dimensions and acreages are based on legal descriptions. Aerial photos are for illustration purposes only and not surveyed boundary lines.
Bidder Responsibilities:
Bidder responsibilities include but are not limited to the following: Bidders agree to keep their username and password confidential, as they are responsible for ANY and ALL activity involving their account. When using the website, you must obey any and all local, state, and federal laws. Violations will result in the termination of website use privileges. The Swicegood Group, Inc. gathers aggregate information from the website, which may include but is not limited to, the number of page visitors, most visited pages, and any and all correspondence. Bidder agrees that the email address provided may be used for correspondence during the auction and possibly future auction announcements.
Guaranty Agreement:
By submitting a bid in the name of a business entity or corporation, the individual submitting the bid enters into a guaranty agreement whereby he or she personally guarantees payment in full to The Swicegood Group, Inc. as fiduciary.
Age Requirement:
All Bidders must be eighteen (18) years of age or older.




































































































